


一、簡述:
YTC齒輪減速三相異步電動機具有普通型和濕熱型。普通型適用于冷卻介質溫度不高于40 C。濕熱型在普通型型號后加“TH”字樣,它除與普通型有相同的性能指標和外形安裝尺寸外,可用于相對濕度不大于95%(25 C),有凝露、有霉菌的環境。額定電壓:380伏(功率在3KW及以下者,為Y接法,其他為 接法) 額定頻率:50赫茲 工作制:連續。
三相異步電動機運行性能好,并可節省各種材料。按轉子結構的不同,三相異步電動機可分為籠式和繞線式兩種。籠式轉子的異步電動機結構簡單、運行可靠、重量輕、價格便宜,得到了廣泛的應用,其主要缺點是調速困難。繞線式三相異步電動機的轉子和定子一樣也設置了三相繞組并通過滑環、電刷與外部變阻器連接。調節變阻器電阻可以改善電動機的起動性能和調節電動機的轉速。
當向三相定子繞組中通過入對稱的三相交流電時,就產生了一個以同步轉速n1沿定子和轉子內圓空間作順時針方向旋轉的旋轉磁場。由于旋轉磁場以n1轉速旋轉,轉子導體開始時是靜止的,故轉子導體將切割定子旋轉磁場而產生感應電動勢(感應電動勢的方向用右手定則判定)。由于導子導體兩端被短路環短接,在感應電動勢的作用下,轉子導體中將產生與感應電動勢方向基本一致的感生電流。
二、模型

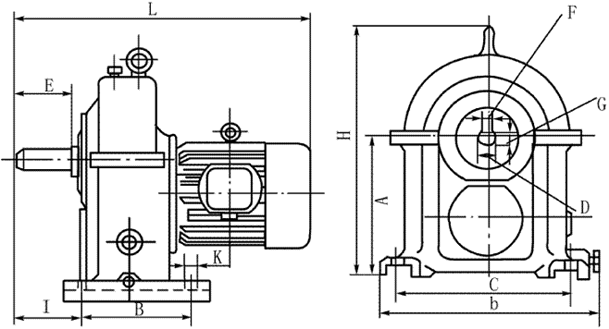
三、YTC齒輪減速三相異步電動機外形及安裝尺寸

|
型號 |
安裝尺寸 |
外形尺寸 |
||||||||||
|
A |
B |
C |
D |
E |
F |
G |
H |
K |
b |
h |
L1 |
|
|
YTC501 |
310 |
250 |
22 |
35 |
80 |
10 |
29.8 |
250 |
19 |
376 |
460 |
565 |
|
YTC502 |
310 |
250 |
22 |
35 |
80 |
10 |
29.8 |
250 |
19 |
376 |
460 |
590 |
|
YTC561 |
370 |
300 |
14 |
50 |
110 |
14 |
44.2 |
280 |
19 |
446 |
512 |
678 |
|
YTC562 |
370 |
300 |
14 |
50 |
110 |
14 |
44.2 |
280 |
19 |
446 |
512 |
720 |
|
YTC671 |
420 |
360 |
9 |
60 |
140 |
18 |
52.9 |
335 |
24 |
520 |
605 |
780 |
|
YTC672 |
420 |
360 |
9 |
60 |
140 |
18 |
52.9 |
335 |
24 |
520 |
605 |
830 |
|
YTC751 |
500 |
360 |
15 |
60 |
140 |
18 |
52.9 |
375 |
24 |
600 |
675 |
870 |
|
YTC752 |
500 |
360 |
15 |
60 |
140 |
18 |
52.9 |
375 |
24 |
600 |
675 |
870 |
|
YTC902 |
550 |
360 |
23 |
70 |
140 |
20 |
62.2 |
450 |
24 |
660 |
800 |
915 |
|
YTC903 |
550 |
360 |
23 |
70 |
140 |
20 |
62.2 |
450 |
24 |
660 |
800 |
960 |
四、齒輪減速三相異步電動機技術參數
|
型 號 |
額定功率 (KW) |
額定轉速(rpm) |
額定電流(A) |
起動電流 |
起動轉矩 |
最大轉矩 |
重量(kg) |
|
額定電流 |
額定轉矩 |
額定轉矩 |
|||||
|
YTC501 |
1.1 |
48,53,59,67,75,88,97,102,114, 129,150,164,171,184,219 |
2.7 |
6.5 |
2.2 |
2.2 |
80 |
|
YTC502 |
1.5 |
48,53,59,67,75,88,97,102,114, 129,150,164,171,184,219 |
3.7 |
6.5 |
2.2 |
2.2 |
85 |
|
YTC561 |
1.5 |
31,35,39,44 |
4 |
6 |
2 |
2 |
121 |
|
YTC561 |
2 |
48,53,59,67,75,88,97,102,114, 129,150,164,171,184,219 |
5 |
7 |
2.2 |
2.2 |
121 |
|
YTC562 |
2 |
31,35,39,44 |
5.6 |
6 |
2 |
2 |
126 |
|
YTC562 |
2.8 |
48,53,59,67,75,88,97,102, 114,129,150,164,171,184,219 |
6.8 |
7 |
2.2 |
2.2 |
126 |
|
YTC671 |
3.8 |
88,97,114,129,150,164,184,219 |
8.8 |
7 |
2.2 |
2.2 |
227 |
|
YTC672 |
5.2 |
88,97,114,129,150,164,184,219 |
11.6 |
7 |
2.2 |
2.2 |
232 |
|
YTC751 |
3.8 |
31,35,39,44 |
9.4 |
7 |
2 |
2 |
247 |
|
YTC751 |
5.2 |
48,53,59,67,75 |
11.6 |
7 |
2.2 |
2.2 |
247 |
|
YTC752 |
5.2 |
31,35,39,44 |
12.6 |
7 |
2 |
2 |
265 |
|
YTC752 |
7 |
48,53,59,67,75 |
15.4 |
7 |
2.2 |
2.2 |
265 |
|
YTC902 |
7 |
31,35,39,44 |
17 |
7 |
2 |
2 |
375 |
|
YTC902 |
9.5 |
48,53,59,67,75,220 |
22.6 |
7 |
2.2 |
2.2 |
375 |
|
YTC903 |
9.5 |
31,35,39,44 |
20.9 |
7 |
1.8 |
1.8 |
445 |
|
YTC903 |
13.2 |
48,53,59,67,75,220 |
27.4 |
7 |
1.8 |
1.8 |
445 |